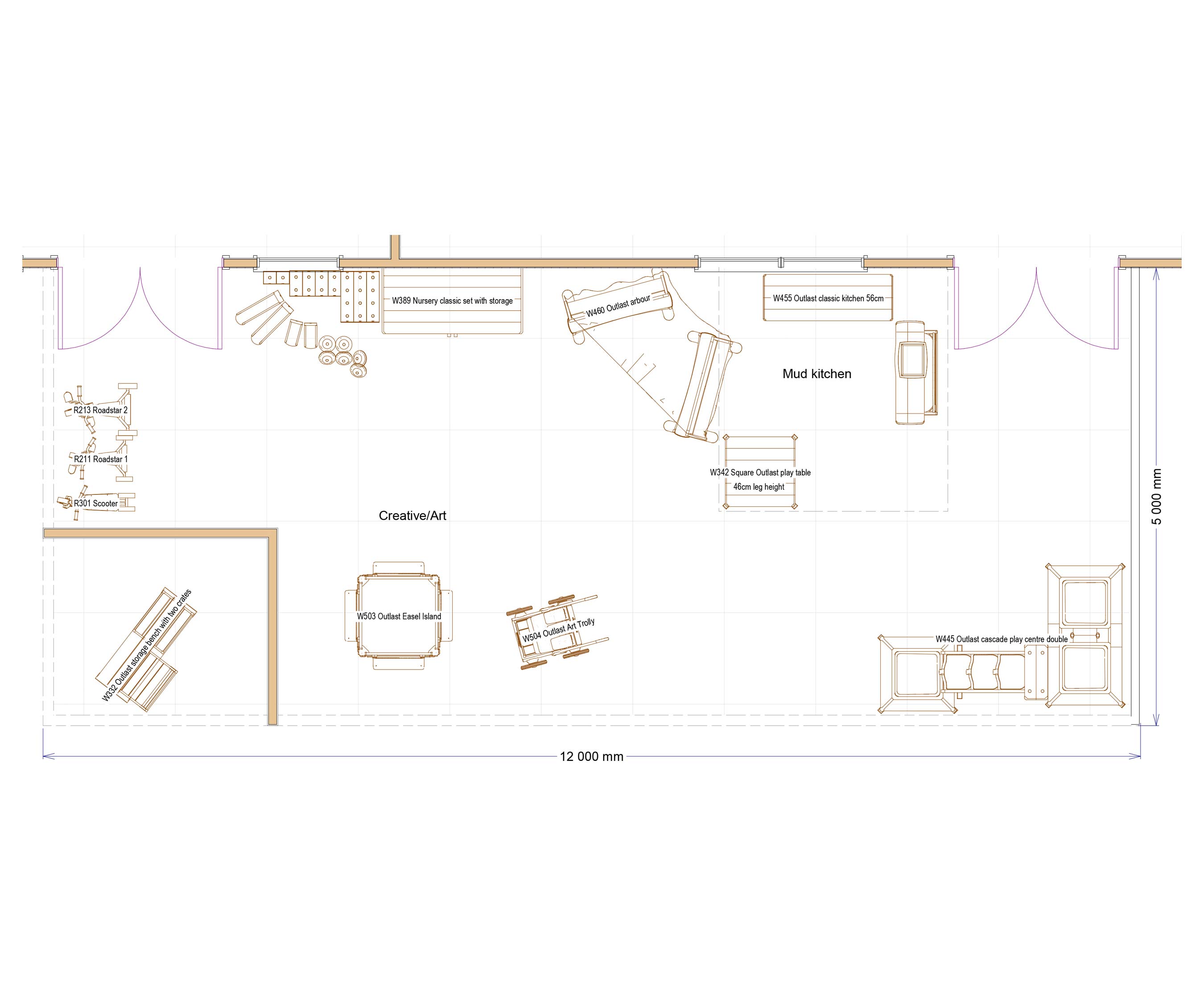
Sample room layout

3–5s Outdoor area

This layout illustrates how the equipment can be used and suggests age-appropriate options. When planning your outdoor space, please take into account your setting’s specific needs, including terrain, surfacing, and available space. While Community Playthings does not offer a full outdoor design service, your account manager can connect you with one of our trusted outdoor design partners for comprehensive support.

Age of children
3–5
Area
60m²
Type
Outdoor

Products

Quantity
Price
R211

Tricycle “Roadstar”

£256
excl. VAT
Seat height: Roadstar I - 32 cm
£256
R213

Tricycle “Roadstar”

£279
excl. VAT
Seat height: Roadstar II - 36 cm
£279
R301

Starter Scooter

£218
excl. VAT
£218
W322

Outlast Wheelbarrow

£510
excl. VAT
£510
£762
W342

Square Outlast Play Table

£662
excl. VAT
Table height: 46 cm
£662
£5,970
£3,450
W455

Outlast Classic Kitchen 56 cm

£2,390
excl. VAT
£2,390
W460

Outlast Arbour

£1,465
excl. VAT
£1,465
W503

Outlast Easel Island

£1,750
excl. VAT
£1,750
W504

Outlast Art Trolley

£725
excl. VAT
£725
Item count: 12
Subtotal: £18,437

Create new list

Create new list

{quantity} added to {list_name}

Go to list