Room design
                
                
                
                    Sample room layouts
                
                
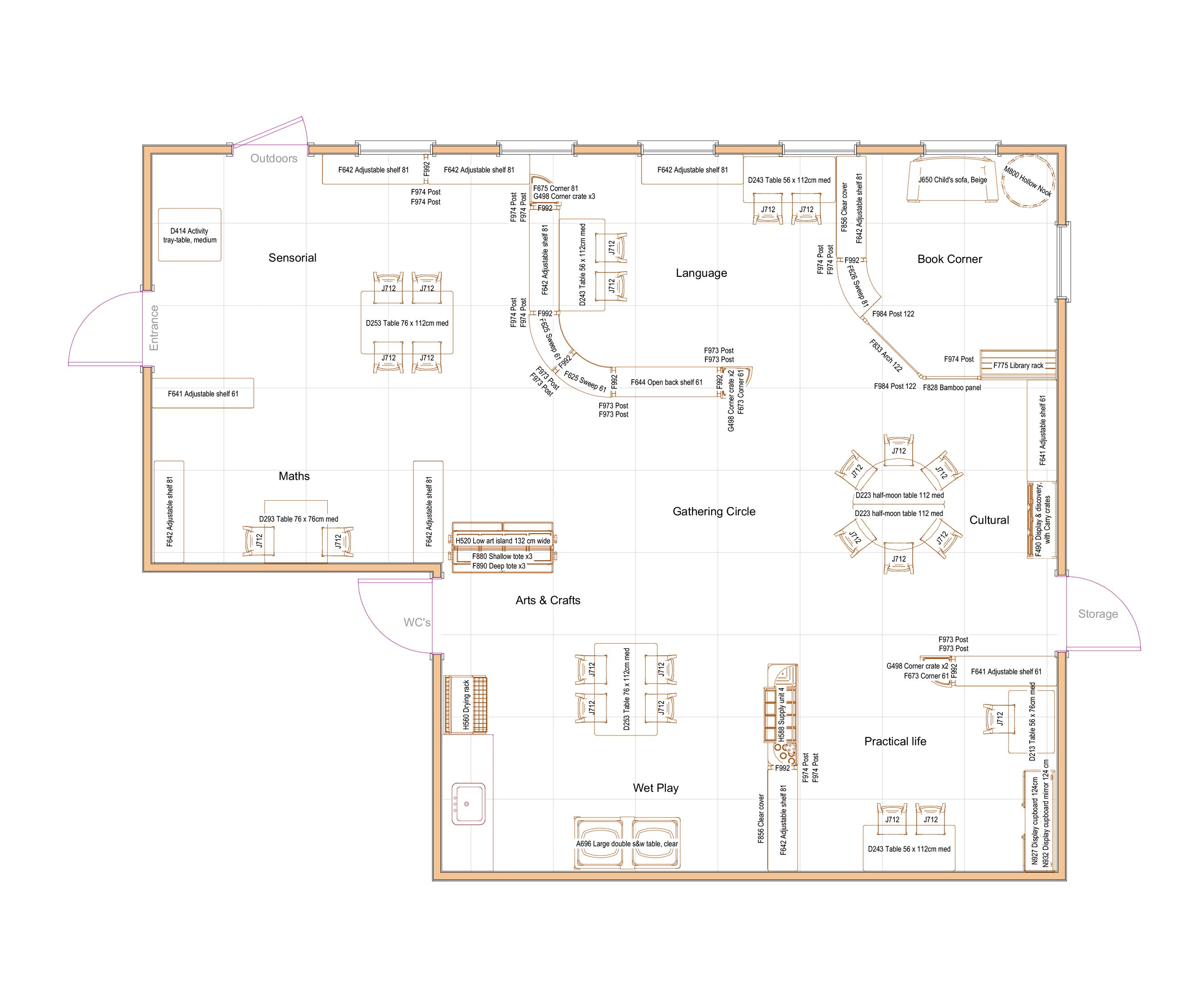
2-5s Montessori Classroom for 30        
        
    
            
                Sample room layout
            
        
2–5s Montessori classroom for 30
                Age of children
            
            
               2–5
            
        
                Number of children
            
            
               30
            
        
                Area
            
            
               85m²
            
        
                Type
            
            
               Montessori
            
        Products
Quantity
            Price
            D213
            Rectangular MultiTable
£172
                excl. VAT
            
                                        Size: 56 x 76 cm
                                    
                                
                                        Leg type: Adjustable
                                    
                                
                                        Table height: Medium
                                    
                                
                    £172
                    
                        
                        
                    
                
            
                    £440
                    
                        
                        
                    
                
            D243
            Rectangular MultiTable
£202
                excl. VAT
            
                                        Size: 56 x 112 cm
                                    
                                
                                        Leg type: Adjustable
                                    
                                
                                        Table height: Medium
                                    
                                
                    £606
                    
                        
                        
                    
                
            D253
            Rectangular MultiTable
£249
                excl. VAT
            
                                        Size: 76 x 112 cm
                                    
                                
                                        Leg type: Adjustable
                                    
                                
                                        Table height: Medium
                                    
                                
                    £498
                    
                        
                        
                    
                
            
                    £225
                    
                        
                        
                    
                
            H588
            Supply Unit
£1,242
                excl. VAT
            
                                        Size: 124 cm
                                    
                                
                                        Container options: With Carry crates
                                    
                                
                                        Container style: Solid carry crate
                                    
                                
                    £1,242
                    
                        
                        
                    
                
            
                Item count:
                108
            
            
                Subtotal:
                £19,886